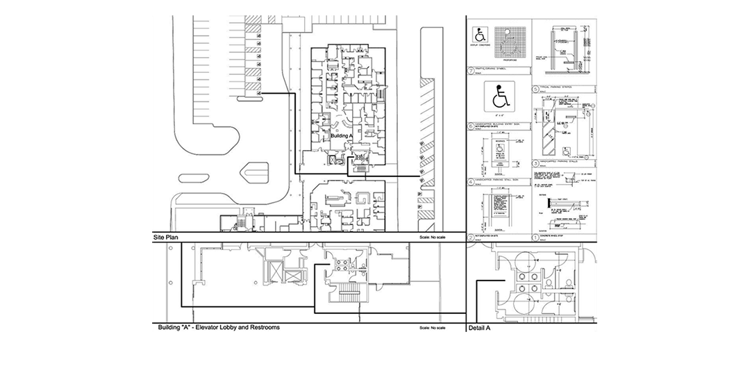
Delineation of unobstructed access to the building including sidewalks, parking, building entrance and public restrooms. Also includes sink, toilet, drinking fountains and public telephone heights. Requires a floor plan.