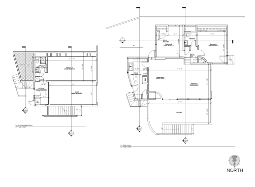
Usually created before the design phase of a remodeling/construction project. Measured drawings are necessary to document existing conditions when record data is unavailable, unreliable or has not been updated properly.